DM3.0S
Elevador tijera de taller mecánico de tijera 3 toneladas
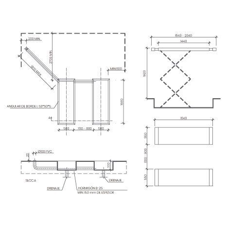
Elevador de tijera empotrado para taller.
Datos Técnicos:
Capacidad: 3000 kg
Presión de aire: 6-8 bar
Alimentación: 400V/3ph/50Hz/2.2KW – 230V/1ph/50Hz/2.2KW
Descripción:
Elevador de tijera para empotrar
Provisto de válvulas anti-retorno y de seguridad
Calzos para distintos tipos de vehículos
Adaptador opcional para vehículos SUV
Bloqueo de seguridad mediante trinquete neumático
Tacos Incluidos:
4 x Tacos 24x18x9.5 cm





